top of page
EXTENSION D'UNE MAISON A MONTREUIL
extension et surélévation d'une maison
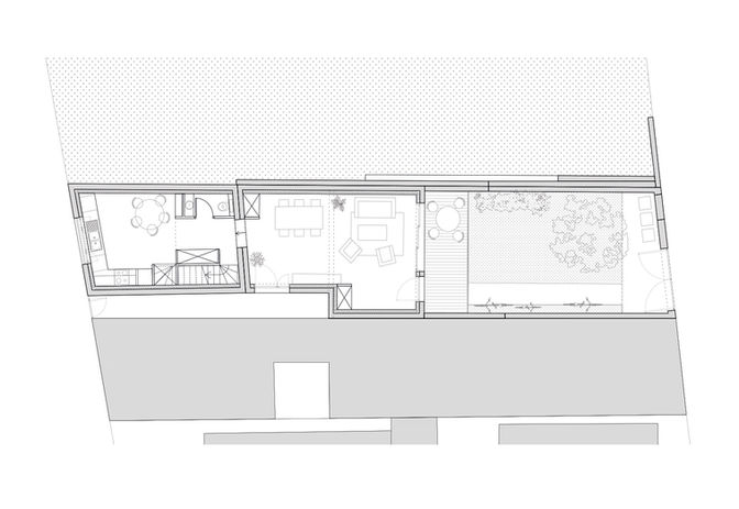
La parcelle sur laquelle se situe le projet est traversante sur deux rues et entièrement bâtie, entre la maison et des garages-atelier.
Le principal enjeu du projet a résidé dans la nécessité d'agrandir l'habitation afin de construire une maison avec 4 chambres tout en amenant de la lumière naturelle et du vide.
Les garages et ateliers sont démolis et une extension accolée à la maison existante est créée. Une surélévation est également prévue, donnant sur la toiture-terrasse de l'extension créée.
La cuisine est déplacée au RDC côté rue et le salon prend place dans l'extension donnant, par une grande baie vitrée, sur un jardin créé suite à la démolition des garages.
Les chambres des enfants et leur salle de bain sont positionnés au premier étage de la maison existante rénovée et de l'extension. Le dernier étage réalisé en surélévation accueille la chambre principale, une salle d'eau et un petit bureau.
Cet étage s'ouvre sur une grande toiture-terrasse, qui est en partie couverte afin de pouvoir accueillir une cuisine d'été et des espaces abrités du soleil et de la pluie.
localisation : 156 rue de Romainville, 93100 Montreuil
maîtrise d'ouvrage : Privée
maîtrise d’œuvre : SERA
date et avancement : 2023 / mission partielle / travaux en cours
surface et coût : 126 m² / NC
bottom of page





